

 
 
| 
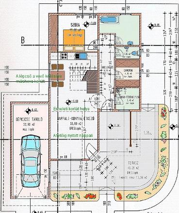
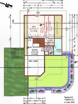
 Nagy alapterületű galériás készház 
 167,6 négyzetméteres kívül és belül egyaránt elegáns megjelenésű garázsos tetőteres készház. A nappali felett egy galériás rész, ez elveszi ugyan a tetőtér hasznos alapterületének egy részét de nagyon hangulatossá teszi a belső teret. | 

 
| A házakat és alaprajzokat bemutató oldalaink külön aloldalakkal bővültek egy aldomain címen, a http://keszhaz.dener.hu lapon. A továbbiakban új alaprajzok erre a címre kerülnek feltöltésre. | 
