
 
| 95 és 129 négyzetméter hasznos alapterületű készházak 
 
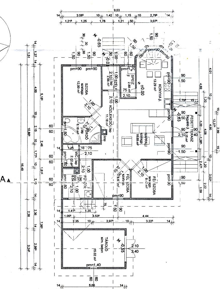
 A ház eredeti megépült hasznos alapterülete 95,6 m2 + 15 m2 garázs. Az építész rajz alul látható, a rajzon szereplő falméretek nem mérvadóak, a ház a jelöltnél vastagabb fallal készült. A most gyártott normál falszerkezetünknél a szigetelőanyag vastagsága 23 cm! / Így a hőszigetelő képessége megközelíti a passzívház ajánlásait./ 
 A módosított alaprajzon a szobák nagyobb alapterületűek és az elrendezésük diszkrétebb. A rajz módosítható. Fotó görgetés után a 3. lapon. 
 | 




 
| A házakat és alaprajzokat bemutató oldalaink külön aloldalakkal bővültek egy aldomain címen, a http://keszhaz.dener.hu lapon. A továbbiakban új alaprajzok erre a címre kerülnek feltöltésre. | 


