| Kis alapterületű könnyűszerkezetes ház 
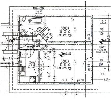
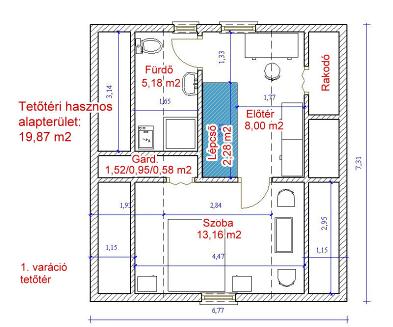
 Kis alapterületű könnyűszerkezetes családi ház nyugdíjasoknak vagy fiataloknak, fészekrakóknak. A ház tetőtere is kiépült, így a földszinti 39,9m2 alapterülethez 26m2 tetőtér is tartozik. Feljáró a nappali bejáratától balra, az ajtótól 15 cm távolságról indul. A falvastagságok az új falaink szerint. Az épület külső méretei 7 x 6,5 m. 
 A házhoz kibővített alaprajzok készültek. | 





 
| Lent további rajzok találhatók | 




 
| A két változat között a tetőtérben van különbség. A tetőtéri alaprajz a lépcső típusához lett alakítva a jobb helykihasználás miatt. A második variációban a zuhanyzó kikerült az épület külső síkjához, így a tetőt egy ablakházzal /gaubeval/ meg kell emelni a fürdőnél, a feljárónak csigalépcső alkalmazható. | 

 
| A házakat és alaprajzokat bemutató oldalaink külön aloldalakkal bővültek egy aldomain címen, a http://keszhaz.dener.hu lapon. A továbbiakban új alaprajzok erre a címre kerülnek feltöltésre. | 
