 
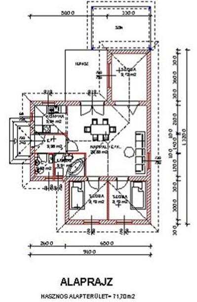
| Start 72m2 hasznos alapterületű gyorsház, amely fiataloknak ideális. A házhoz egy szűk telekre alkalmazható változat is készült. | 


 
| A ház egy lehetséges változata | 
 
| A házakat és alaprajzokat bemutató oldalaink külön aloldalakkal bővültek egy aldomain címen, a http://keszhaz.dener.hu lapon. A továbbiakban új alaprajzok erre a címre kerülnek feltöltésre. | 

