

|
Legnagyobb sikerű könnyűszerkezetes házunk 85 és 98 négyzetméteres változatban
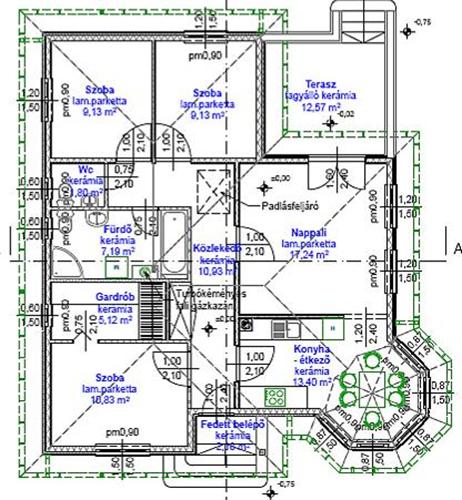
Házaink többsége egyedi tervezésű, de vannak olyanok amelyeket többször is felépítettünk. Az itt levő oldalakon olyan ház látható, amelyet nyolcféle variációban építettünk és jelenleg is kettő előkészítés alatt van. Az első ház hasznos alapterülete 85,77 m2 Harmonikus és arányos megjelenésű elegáns ház.
Szilvia 85 |













|
A házat kulcsrakész állapotra építettük, de az alapozás és a terep rendezése a tulajdonos dolga volt. A falak már a megnövelt 23 cm-es hőszigeteléssel készültek. A házhoz kérésre alaprajzi változatot küldünk. A továbbiakban ugyanennek a háznak egy 98 négyzetméteres változata látható. |



|
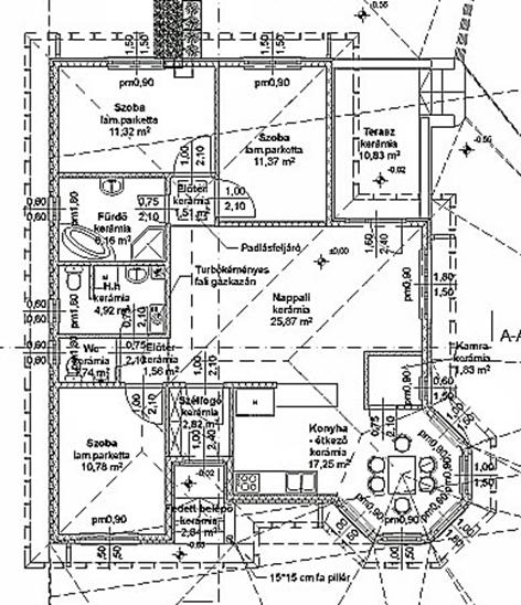
Dorina 98
A ház hasznos alapterülete 98 m2. Kulcsrakész állapotra az építési idő kevesebb volt mint három hónap. |





|
A képeken jól nyomon követhető a ház építésének egyes fázisai. A ház előzetes egyeztetés alapján bármikor megtekinthető. Kérésre megépített alaprajzi változatokat küldünk, bármilyen kérdésére szívesen válaszolunk! |







|
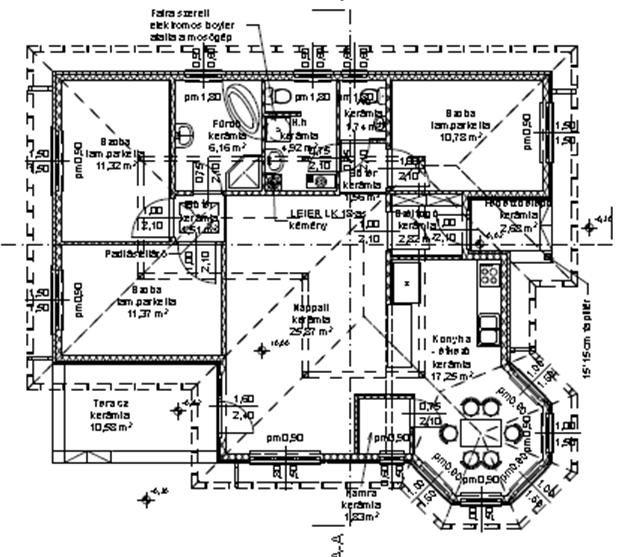
A ház legújabb változata, amely tulajdonképpen megegyezik a Sláger 98 változattal, csak annak tükörképe. Jelenleg építés alatt, a külső vakolás az időjárástól függően, de valószínűleg tavasszal. A ház megtekinthető. Előzetes egyeztetés alapján a másik két ház is megnézhető a tulajdonosokkal történt megbeszélés szerint. Olvassa el akciós oldalunkat! Érdeklődésre a házról további alaprajzokat küldünk, eddig kilenc variációban épült. |
|
Újabb változat |
|
Normál falszerkezetünkben a hőszigetelő anyag vastagságát 23 cm-re növeltük az árak megtartása mellett! |
|
A házakat és alaprajzokat bemutató oldalaink külön aloldalakkal bővültek egy aldomain címen, a http://keszhaz.dener.hu lapon. A továbbiakban új alaprajzok erre a címre kerülnek feltöltésre. |




